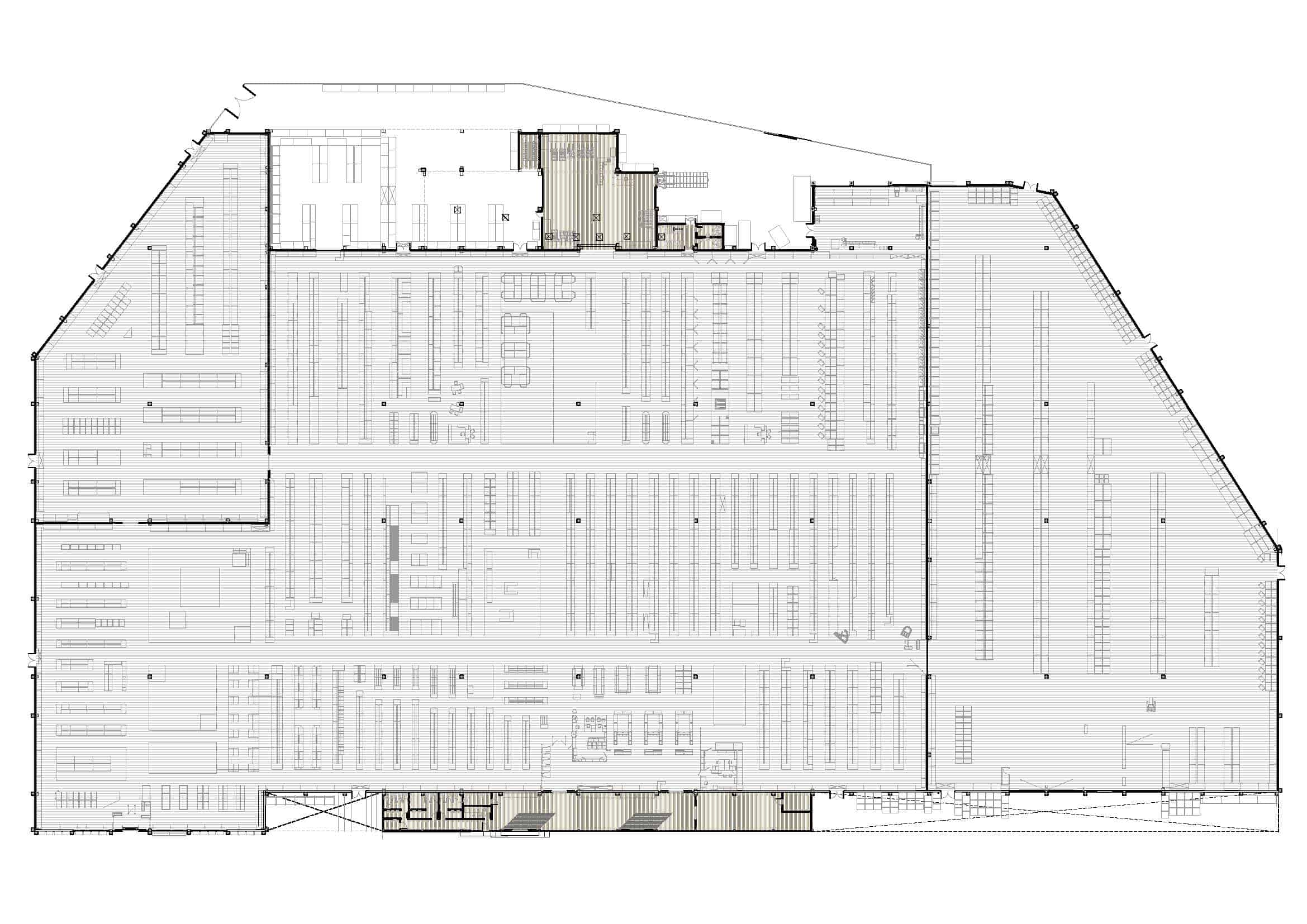
CENTRO BAUHAUS EN PATERNA (dirección de obra)

Scroll al inicio