Ir al contenido
Estudio
Alternar menú
Quiénes somos
Cómo trabajamos
Proyectos
Alternar menú
Administrativo
Cívico/Cultural
Comercial
Deportivo
Educativo
Misceláneo
Residencial
Noticias
Contacto
Main Menu
Estudio
Alternar menú
Quiénes somos
Cómo trabajamos
Proyectos
Alternar menú
Administrativo
Cívico/Cultural
Comercial
Deportivo
Educativo
Misceláneo
Residencial
Noticias
Contacto
Comercial
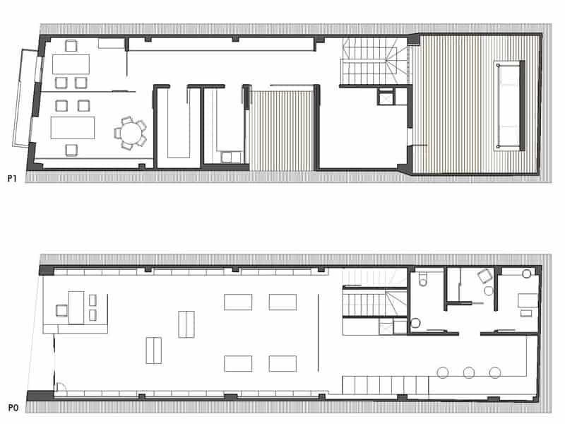
REFORMA DE FARMACIA EN PUZOL
Comienza a escribir y presiona Intro para buscar
Buscar...
Scroll al inicio